一、產品概述:
Z45T 型 暗桿楔式單閘板手動閘閥 PN10~PN16傳動方式為手動,連接方式為法蘭連接,暗桿楔式剛性單閘板,閥座密封面材料為青銅,公稱壓力 PN10~PN16,閥體材料為灰鑄鐵(Z45T-10)、球墨鑄鐵(Z45T-16Q)的閘閥。
二、工作原理:
轉動手輪,通過手輪與閥桿的螺紋的進、退,提升或下降與閥桿連接的閥板,達到開啟和關閉的作用
閘閥具有以下優點:
1、流動阻力小。閥體內部介質通道是直通的,介質成直線流動,流動阻力小。
2、啟閉時較省力。是與截止閥相比而言,因為無論是開或閉,閘板運動方向均與介質流動方 向相垂直。
3、高度大,啟閉時間長。閘板的啟閉行程較大,降是通過螺桿進行的。
4、水錘現象不易產生。原因是關閉時間長。
5、介質可向兩側任意方向流動,易于安裝。閘閥通道兩側是對稱的。
6、結構長度(系殼體兩連接端面之間的距離)較小。
7、密封面易磨損,影響使用壽命。啟閉時,閘板與閥座兩個密封面相互摩擦滑動,要介質壓力作用下易產生擦傷磨損,影響密封性能,縮短使用壽命。
8、價格較貴。接觸密封面較多,加工較復雜,特別是閘板座上的密封面不易加工,而且零件較多。形體簡單 , 結構長度短,制造工藝性好,適用范圍廣。
三、產品性能參數:
四、產品零部件材料:
Z45T-10、Z45T-16Q 型暗桿楔式單閘板手動閘閥零部件材料
| 型號 | 材料 |
| 閥體、閥蓋、閘板 | 閥桿 | 密封面 | 填料 |
| Z45T-10 | 灰鑄鐵 | 鉻不銹鋼 | 鑄鋁青銅 | O 形圈 |
| Z4T5-16Q | 球墨鑄鐵 | 鉻不銹鋼 | 鑄鋁青銅 | O 形圈 |
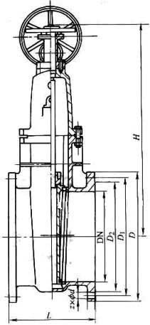
五、產品外形結構尺寸:
Z45T-10 型暗桿楔式單閘板手動閘閥外形結構尺寸(mm)
| DN | L | D | D1 | D2 | z×φd | H |
| 50 | 178 | 165 | 125 | 102 | 4×φ19 | 285 |
| 65 | 190 | 185 | 145 | 122 | 4×φ19 | 305 |
| 80 | 203 | 200 | 160 | 138 | 8×φ19 | 330 |
| 100 | 229 | 220 | 180 | 158 | 8×φ19 | 405 |
| 125 | 254 | 250 | 210 | 188 | 8×φ19 | 460 |
| 150 | 267 | 285 | 240 | 212 | 8×φ23 | 506 |
| 200 | 292 | 340 | 295 | 268 | 8×φ23 | 610 |
| 250 | 330 | 395 | 350 | 320 | 12×φ23 | 730 |
| 300 | 356 | 445 | 400 | 370 | 12×φ23 | 950 |
Z45T-16Q 型暗桿楔式單閘板手動閘閥主要外形及結構尺寸(mm)
| DN | L | D | D1 | D2 | z×φd | H |
| 50 | 178 | 165 | 125 | 102 | 4×φ19 | 285 |
| 65 | 190 | 185 | 145 | 122 | 4×φ19 | 305 |
| 80 | 203 | 200 | 160 | 138 | 8×φ19 | 330 |
| 100 | 229 | 220 | 180 | 158 | 8×φ19 | 405 |
| 125 | 254 | 250 | 210 | 188 | 8×φ19 | 460 |
| 150 | 267 | 285 | 240 | 212 | 8×φ23 | 506 |
| 200 | 292 | 340 | 295 | 268 | 12×φ23 | 610 |
| 250 | 330 | 405 | 355 | 320 | 12×φ28 | 730 |
| 300 | 356 | 460 | 410 | 378 | 12×φ28 | 950 |
| 350 | 381 | 520 | 470 | 438 | 16×φ28 | 1125 |
| 400 | 406 | 582 | 525 | 490 | 16×φ31 | 1200 |
| 450 | 432 | 640 | 585 | 550 | 20×φ31 | 1320 |
| 500 | 457 | 715 | 650 | 610 | 20×φ34 | 1410 |
| 600 | 508 | 840 | 770 | 725 | 20×φ37 | 1500 |
| 700 | 610 | 910 | 840 | 795 | 24×φ37 | 1700 |
| 800 | 660 | 1025 | 950 | 900 | 24×φ40 | 1850 |
| 900 | 711 | 1125 | 1050 | 1000 | 28×φ40 | 2250 |
| 1000 | 811 | 1255 | 1170 | 1115 | 28×φ43 | 2400 |
